Viviendas sin ascensor
¿Su vivienda no tiene ascensor? No se preocupe, siempre se puede instalar uno.
Usted está aquí:
Ascensores unifamiliares ▪ Viviendas sin ascensor ▪ Ejemplos ▪ Ejemplo 2
Ejemplos de proyectos realizados
Ejemplo 2. Instalación en el hueco de la escalera.
Localización: Provincia de Valencia.
Tipo de vivienda: Unifamiliar con 5 años de antigüedad.
Modelo de ascensor: MINI.
Dirección técnica: VERTITEC S.L.
Departamento de Rehabilitaciones
Introducción
El proyecto consistía en la instalación de un ascensor unifamiliar en una vivienda unifamiliar adosada.
Principales hitos
• Realizar la obra y la instalación del ascensor sin tener que desalojar las vivienda.
• Plazo de instalación muy reducido puesto que la vivienda continuaba habitada.
• Se tenía que conseguir que mantener un buen nivel de luminosidad.
Proyecto
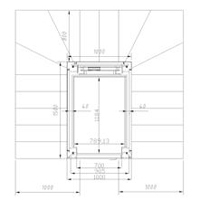
La escalera contaba con un ojo de 60 cm de ancho x 130 cm de profundidad. La distribución de la escalera es de tipo U con una anchura de peldaños de 1 m en sus 3 tramos. Se tenía que recortar la escalera en todo su recorrido; 3 plantas y dejar la anchura de peldaños en 800 mm. El hueco final del que dispondríamos seria de 800 mm de ancho y 1500 mm de profundidad.
A continuación le mostramos los planos del proyecto, puede pinchar sobre ellos para ampliarlos y ver más detalles.
Por la distribución de la escalera el ascensor seria de embarque simple con puertas de acceso semiautomáticas con salida a los rellanos de la vivienda.
Quique y Patricia (propietarios de la vivienda) querían mantener la máxima luminosidad en la escalera y se opto por un ascensor modelo Mini con acabados de cabina en aluminio anodizado y cristal trasparente (Panorámica) y un cerramiento en estructura autoportante de color blanco acabada en cristal en todos sus lados. El cerramiento autoportante aseguraba la reducción en tiempos de instalación.
Tenemos que agradecer a Quique y Patricia su nivel de implicación en el proyecto, ha sido muy fácil trabajar con ellos. Tampoco podemos dejar de reconocer la paciencia que han demostrado tener; hacer vida (normal) durante la realizción de la obra, instalación de estructura y ascensor. No tener ni un momento de debilidad es admirable y dice mucho de esta familia.
VOLVER



