Viviendas sin ascensor
¿Su vivienda no tiene ascensor? No se preocupe, siempre se puede instalar uno.
Usted está aquí:
Ascensores unifamiliares ▪ Viviendas sin ascensor ▪ Ejemplos ▪ Ejemplo 1
Ejemplos de proyectos realizados
Ejemplo 1. Instalación en el hueco de la escalera.
Localización: Provincia de Valencia.
Tipo de vivienda: Plurifamiliar.
Modelo de ascensor: MINI.
Dirección técnica: Ferràn Fuster Monzó.
Teléfono de contacto: 96 287 20 02.
Departamento de Rehabilitaciones
Introducción
El proyecto consistía en la instalación de un ascensor unifamiliar en una vivienda con más de 100 años de antigüedad. La edificación contaba con 3 alturas comunicadas por una escalera interior.
Principales hitos
• Realizar la obra y la instalación del ascensor sin tener que desalojar las viviendas.
• Conservar al máximo la escalera; la forma, el revestimiento y la barandilla, ya que estaban considerados como un elemento de mucho valor arquitectónico.
• Se tenía que conseguir que mantener un buen nivel de luminosidad.
Proyecto
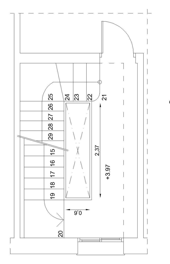
La escalera contaba con un ojo de 60 cm de ancho x 237 cm de profundidad. La anchura era la medida problemática, para hacerla de mayor medida había que recortar los peldaños pero la escalera ya era de por sí estrecha. Se consiguió un ancho de hueco de 80 cm, manteniendo la medida mínima exigida para el ancho de escalera. El hueco final del que disponíamos iba a ser de 80 cm de ancho x 130 cm de profundidad. Se recortaron en cada tramo únicamente los peldaños necesarios para alcanzar la profundidad de hueco de 1.3 metros.
A continuación le mostramos los planos del proyecto, puede pinchar sobre ellos para ampliarlos y ver más detalles.
Por la distribución de la escalera era necesario que el acceso en las plantas de viviendas fuera a 90º respecto del acceso de la planta baja. Un ascensor con doble embarque a 90º en un hueco tan reducido dificulta todavía más el proyecto.
El técnico planteó un muro de más de 10 metros de altura a base de ladrillo macizo para preparar los anclajes de las guías del ascensor hidráulico. El muro se encuentra anclado en cada uno de los forjados y en la bóveda de la escalera.
Por la limitación en cuanto a medidas, sólo podíamos instalar el ascensor modelo MINI, de entra las distintas posibilidades de decoración, la propiedad opto por la versión panorámica ya que aseguraba mantener la luminosidad de la escalera.
A petición de la propiedad, Ferrán diseño un cerramiento perimetral mediante estructura metálica ajunquillada para poder albergar la disposición de los cristales de seguridad que se instalaron.
Nuestro más sincero agradecimiento y felicitación tanto a la propiedad como al técnico, el nivel de implicación y profesionalidad de ambos ha sido fundamental para conseguir los objetivos planteados y unos acabados dignos para la arquitectura del inmueble. Cuando se cuenta con un equipo así, lo complicado se vuelve sencillo y trabajar se convierte en una satisfacción.
VOLVER





