Planos y archivos DWG de la estructura autoportante
Usted está aquí:
Ascensores unifamiliares ▪ Productos ▪ Estructura autoportante ▪ Planos y archivos DWG
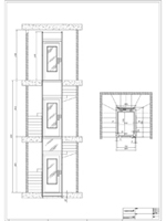
Aquí puede ver ejemplos de planos y archivos DWG de estructuras autoportantes instaladas por Vertitec. Pinche sobre las imágenes para ampliarlas o sobre los archivos DWG para descargarlos.
Pulse sobre las imágenes de los planos para verlos ampliados y sobre "Archivo DWG" para descargar el archivo DWG de dicho plano.
Estructura autoportante
- Catálogo de la estructura autoportante
Catálogo en PDF de la estructura autoportante para ascensor. - Planos y archivos DWG
Vea los parchivos y planos en DWG de la estructura autoportante. - Características generales
De la estructura autoportante para ascensor. - Principales ventajas
De la instalación de una estructura autoportante - Galería de imagenes
Imágenes de ascensores con estructura autoportante instalados por Vertitec.




